- HOME
- マンションギャラリー一覧
- ステージグランデ東池袋駅前
ステージグランデ東池袋駅前
【 マンション 】インターネット利用料無料、独立洗面台等の設備に優れた分譲賃貸
| 最寄駅 | 所在地 | 間取り | 面積 | 築年月 |
|---|---|---|---|---|
有楽町線・東池袋駅 徒歩 1分 | 東京都豊島区東池袋5-8-5 | 1 K | 21.94㎡ | 2015年02月 |
この物件の募集は終了しています
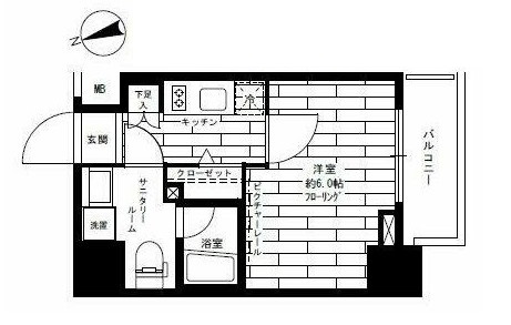
南向きの1Kはインターネット利用料が無料。2口ガスのシステムキッチンや浴室乾燥機、洗髪洗面化粧台、温水洗浄便座、エアコン等の設備が充実した東池袋駅徒歩1分の2015年築分譲賃貸マンションです。
物件写真・間取り
物件概要
| 物件名 | ステージグランデ東池袋駅前 |
|---|
| 交通機関 | 有楽町線・東池袋駅 徒歩 1分 山手線・池袋駅 徒歩 12分 副都心線・雑司が谷駅 徒歩 10分 |
|---|
| 間取り詳細 | 6畳 |
|---|
| 建物構造 | RC |
|---|
| 所在階 / 階数 | 3階/13階建 |
|---|
| 主要採光面 | 南側 |
|---|
| 契約期間 | 2年 |
|---|
| 引渡 | 即入居 |
|---|
| 現況 | 空 |
|---|
| 設備・条件 | 分譲賃貸/エレベーター/24時間ゴミ出し可/宅配ボックス/敷地内ごみ置き場/築5年以内/駐輪場/南向き/オートロック/カードキー/防犯カメラ/システムキッチン/ガスレンジ付/2口コンロ/都市ガス/バストイレ別/浴室乾燥機/温水洗浄便座/洗面所独立/シャワー付洗面台/24時間換気システム/バルコニー/南面バルコニー/フローリング/室内洗濯置/クロゼット/シューズボックス/BS・CS/ネット使用料不要/TVインターホン/即入居可/保証人不要/エアコン |
|---|
| 備考 | 池袋のお一人暮らしはリガール株式会社にお任せください! |
|---|
| 取引態様 | 媒介 |
|---|
| 情報登録日 | 2019年12月02日 |
|---|
| 情報更新日 | 2019年12月02日 |
|---|















