- HOME
- マンションギャラリー一覧
- レヴィーガ大山
レヴィーガ大山
【 マンション 】3口システムキッチンや独立洗面台等の設備に優れた分譲賃貸
| 最寄駅 | 所在地 | 間取り | 面積 | 築年月 |
|---|---|---|---|---|
東武東上線・大山駅 徒歩 7分 | 東京都板橋区中丸町59-5 | 2 DK | 45.64㎡ | 2008年02月 |
この物件の募集は終了しています
南向き、角部屋、二面採光の風通しに優れた2DKは3口ガスのシステムキッチンや独立洗面台、浴室乾燥機、シャワートイレ等の設備が充実。駐車場や無料で利用可能な駐輪場、宅配ボックス等の共用設備が整う分譲賃貸
物件写真・間取り
物件概要
| 物件名 | レヴィーガ大山 |
|---|
| 交通機関 | 東武東上線・大山駅 徒歩 7分 有楽町線・要町駅 徒歩 19分 三田線・板橋区役所前駅 徒歩 20分 |
|---|
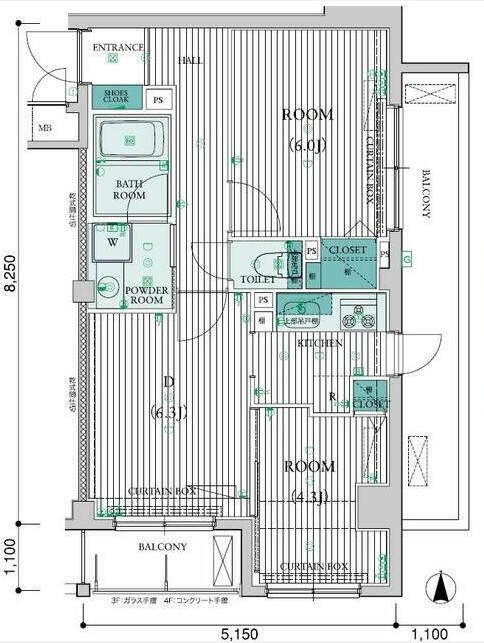
| 間取り詳細 | D:6.3畳 洋室:6畳、4.3畳 |
|---|
| 建物構造 | RC |
|---|
| 所在階 / 階数 | 2階/5階建 |
|---|
| 主要採光面 | 南側 |
|---|
| 契約期間 | 2年 |
|---|
| 引渡 | 2月下旬 |
|---|
| 現況 | 居住中 |
|---|
| 設備・条件 | 分譲賃貸/エレベーター/宅配ボックス/敷地内ごみ置き場/駐輪場/南向き/角住戸/2面採光/南面リビング/オートロック/防犯カメラ/システムキッチン/ガスレンジ付/3口以上コンロ/グリル付/バストイレ別/浴室乾燥機/温水洗浄便座/洗面所独立/24時間換気システム/バルコニー/南面バルコニー/フローリング/全居室フローリング/室内洗濯置/クロゼット/シューズボックス/BS・CS/CATV/光ファイバー/TVインターホン/保証人不要/エアコン |
|---|
| 備考 | 城北エリアのファミリー物件、ディンクス物件はリガール株式会社にご相談ください! |
|---|
| 取引態様 | 媒介 |
|---|
| 情報登録日 | 2019年11月26日 |
|---|
| 情報更新日 | 2019年11月26日 |
|---|











