- HOME
- マンションギャラリー一覧
- 富久クロスコンフォートタワー
富久クロスコンフォートタワー
【 マンション 】コンシェルジュサービス、ゲストルーム、フィットネスルーム等の共用設備が充実した55階建て分譲タワーマンション
| 最寄駅 | 所在地 | 間取り | 面積 | 築年月 |
|---|---|---|---|---|
丸の内線・新宿御苑前駅 徒歩 5分 | 東京都新宿区富久町15-1 | 1 LDK | 36.3㎡ | 2015年05月 |
この物件の募集は終了しています
55階建ての分譲タワーマンション。フィットネスルームやゲストルーム、コンシェルジュサービス、スカイラウンジ、ライブラリー等の共用設備や床暖房、食洗器、ディスポーザー、浄水器等の室内設備が充実。
物件写真・間取り
物件概要
| 物件名 | 富久クロスコンフォートタワー |
|---|
| 交通機関 | 丸の内線・新宿御苑前駅 徒歩 5分 副都心線・新宿三丁目駅 徒歩 8分 都営新宿線・曙橋駅 徒歩 9分 |
|---|
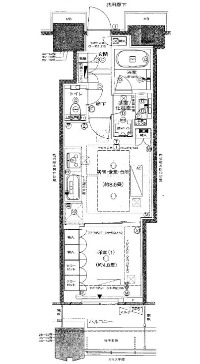
| 間取り詳細 | LDK:8.6畳 洋室:4.8畳 |
|---|
| 建物構造 | RC |
|---|
| 所在階 / 階数 | 27階/55階建 |
|---|
| 主要採光面 | 北側 |
|---|
| 契約期間 | 2年 |
|---|
| 引渡 | 12月中旬 |
|---|
| 現況 | 居住中 |
|---|
| 設備・条件 | タワーマンション/分譲賃貸/エレベーター/エレベーター2基/ゲストルーム/キッズルーム/ペット専用設備/24時間ゴミ出し可/宅配ボックス/フロントサービス/敷地内ごみ置き場/築5年以内/シャッター車庫/駐輪場/バイク置場/オートロック/ダブルロックキー/防犯カメラ/24時間有人管理/システムキッチン/ガスレンジ付/3口以上コンロ/グリル付/食器洗乾燥機/浄水器/ディスポーザー/都市ガス/バストイレ別/オートバス/追焚機能浴室/浴室乾燥機/温水洗浄便座/洗面所独立/三面鏡付洗面化粧台/24時間換気システム/床暖房/バルコニー/フローリング/室内洗濯置/クロゼット/シューズボックス/BS・CS/ネット使用料不要/TVインターホン/保証人不要/エアコン/眺望良好 |
|---|
| 備考 | 1F ママズラウンジ、キッズルーム、グリーンカフェ、ガーデンラウンジ、ブックテラス、ブックラウンジ、ブックカフェ大型スーパー、認定こども園。 |
|---|
| 取引態様 | 媒介 |
|---|
| 情報登録日 | 2019年11月05日 |
|---|
| 情報更新日 | 2019年11月05日 |
|---|

















