- HOME
- マンションギャラリー一覧
- TK仲宿
TK仲宿
【 一戸建て 】追い炊きや3口システムキッチン等の設備に優れた新築戸建て
| 最寄駅 | 所在地 | 間取り | 面積 | 築年月 |
|---|---|---|---|---|
三田線・板橋区役所前駅 徒歩 7分 | 東京都板橋区仲宿20-7 | 2 LDK | 52.09㎡ | 2019年08月 |
この物件の募集は終了しています
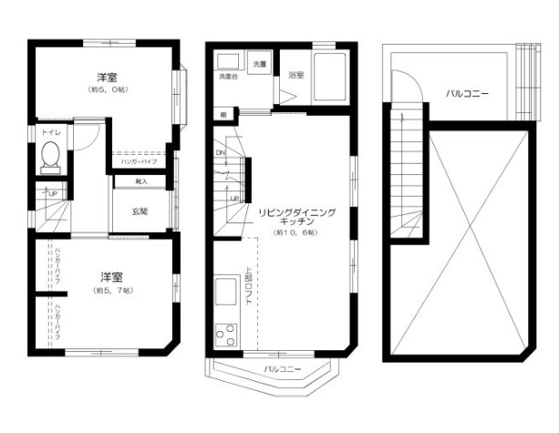
ロフトがある2LDKの新築戸建て。全室2面採光の風通しに優れた室内、グリル付きの3口システムキッチンや三面鏡付独立洗面化粧台、追い炊き、浴室乾燥機、温水洗浄便座、エアコン2基と室内設備が充実してます
物件写真・間取り
物件概要
| 物件名 | TK仲宿 |
|---|
| 交通機関 | 三田線・板橋区役所前駅 徒歩 7分 三田線・板橋本町駅 徒歩 13分 東武東上線・大山駅 徒歩 17分 |
|---|
| 間取り詳細 | LDK:10.6畳 洋室:5.7畳、5畳 |
|---|
| 建物構造 | 木造 |
|---|
| 所在階 / 階数 | 1-2階/2階建 |
|---|
| 主要採光面 | 南側 |
|---|
| 契約期間 | 2年 |
|---|
| 引渡 | 即入居 |
|---|
| 現況 | 空 |
|---|
| 設備・条件 | 南向き/複数面採光/南面リビング/ロフト/全居室洋室/システムキッチン/ガスレンジ付/3口以上コンロ/グリル付/バストイレ別/オートバス/追焚機能浴室/浴室乾燥機/温水洗浄便座/洗面所独立/洗面化粧台/三面鏡付洗面化粧台/24時間換気システム/バルコニー/南面バルコニー/2面バルコニー/室内洗濯置/クロゼット/シューズボックス/TVインターホン/即入居可/保証人不要/エアコン/エアコン2台/通風良好/陽当り良好 |
|---|
| 備考 | 板橋区のファミリー物件をお探しの方はリガール株式会社にお任せください! |
|---|
| 取引態様 | 媒介 |
|---|
| 情報登録日 | 2019年10月31日 |
|---|
| 情報更新日 | 2019年10月31日 |
|---|

































