- HOME
- マンションギャラリー一覧
- フルーレ早稲田鶴巻町
フルーレ早稲田鶴巻町
【 アパート 】追い炊きや独立洗面台等の設備に優れた最上階、角部屋
| 最寄駅 | 所在地 | 間取り | 面積 | 築年月 |
|---|---|---|---|---|
東西線・早稲田駅 徒歩 5分 | 東京都新宿区早稲田鶴巻町107-7 | 1 K | 19.58㎡ | 2012年07月 |
この物件の募集は終了しています
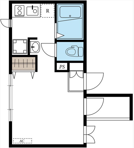
最上階、角部屋、二面採光の風通しに優れた室内は節水に役立つ追い炊き付きのお風呂や2口ガスのシステムキッチン、お洒落な独立洗面台、温水洗浄便座と設備に優れ、インターネットが無料で利用可能です。
物件写真・間取り
物件概要
| 物件名 | フルーレ早稲田鶴巻町 |
|---|
| 交通機関 | 東西線・早稲田駅 徒歩 5分 有楽町線・江戸川橋駅 徒歩 7分 荒川線・早稲田駅 徒歩 10分 |
|---|
| 間取り詳細 | 8.8畳 |
|---|
| 建物構造 | 軽量鉄骨 |
|---|
| 所在階 / 階数 | 3階/3階建 |
|---|
| 主要採光面 | 南東側 |
|---|
| 契約期間 | 2年 |
|---|
| 引渡 | 12月上旬 |
|---|
| 現況 | 居住中 |
|---|
| 設備・条件 | 最上階/敷地内ごみ置き場/駐輪場/東南向き/角住戸/2面採光/オートロック/システムキッチン/ガスレンジ付/2口コンロ/都市ガス/バストイレ別/追焚機能浴室/温水洗浄便座/洗面所独立/24時間換気システム/バルコニー/フローリング/室内洗濯置/クロゼット/シューズボックス/ネット使用料不要/TVインターホン |
|---|
| 備考 | 新宿区のお一人暮らしはリガール株式会社にご相談ください! |
|---|
| 取引態様 | 媒介 |
|---|
| 情報登録日 | 2019年10月24日 |
|---|
| 情報更新日 | 2019年10月24日 |
|---|
























