- HOME
- マンションギャラリー一覧
- ルフォンリブレ大塚テラス
ルフォンリブレ大塚テラス
【 マンション 】ミストサウナや床暖房、食洗器等の高級設備が充実の分譲賃貸
| 最寄駅 | 所在地 | 間取り | 面積 | 築年月 |
|---|---|---|---|---|
山手線・大塚駅 徒歩 4分 | 東京都豊島区北大塚2-33-31 | 1 LDK | 32.75㎡ | 2016年07月 |
この物件の募集は終了しています
南東向き、角部屋の1LDKはペットの飼育が可能、インターネット利用料が無料です。ミストサウナや追い炊き、浴室乾燥機、独立洗面台、食洗器、カウンターキッチン、床暖房、シューズインクローゼットと設備が充実
物件写真・間取り
物件概要
| 物件名 | ルフォンリブレ大塚テラス |
|---|
| 交通機関 | 山手線・大塚駅 徒歩 4分 山手線・巣鴨駅 徒歩 14分 荒川線・巣鴨新田駅 徒歩 4分 |
|---|
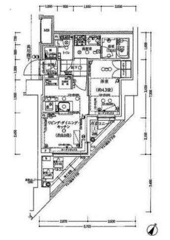
| 間取り詳細 | LDK:8畳 洋室:4.3畳 |
|---|
| 建物構造 | RC |
|---|
| 所在階 / 階数 | 2階/9階建 |
|---|
| 主要採光面 | 南東側 |
|---|
| 契約期間 | 2年 |
|---|
| 引渡 | 12月中旬 |
|---|
| 現況 | 居住中 |
|---|
| 設備・条件 | 分譲賃貸/エレベーター/24時間ゴミ出し可/宅配ボックス/敷地内ごみ置き場/駐輪場/バイク置場/東南向き/角住戸/東南角住戸/南面2室/南面リビング/オートロック/防犯カメラ/セキュリティ会社加入済/全居室洋室/システムキッチン/対面式キッチン/ガスレンジ付/2口コンロ/グリル付/食器洗乾燥機/都市ガス/バストイレ別/脱衣所/オートバス/追焚機能浴室/浴室乾燥機/ミストサウナ/温水洗浄便座/洗面所独立/洗面所にドア/三面鏡付洗面化粧台/シャワー付洗面台/24時間換気システム/床暖房/バルコニー/南面バルコニー/フローリング/全居室フローリング/室内洗濯置/クロゼット/シューズボックス/シューズWIC/ネット使用料不要/TVインターホン/ペット相談/保証人不要/エアコン |
|---|
| 備考 | 高級物件情報が豊富なリガールで楽しいお部屋探しを! |
|---|
| 取引態様 | 媒介 |
|---|
| 情報登録日 | 2019年10月21日 |
|---|
| 情報更新日 | 2019年10月21日 |
|---|














