- HOME
- マンションギャラリー一覧
- ダイアパレス西巣鴨
ダイアパレス西巣鴨
【 マンション 】2015年8月リノベーション済み、追い炊きやカウンターキッチン、独立洗面台等の設備が充実した分譲賃貸マンション
| 最寄駅 | 所在地 | 間取り | 面積 | 築年月 |
|---|---|---|---|---|
三田線・西巣鴨駅 徒歩 9分 | 東京都豊島区西巣鴨1-12-8 | 1 R | 34.21㎡ | 1986年02月 |
この物件の募集は終了しています
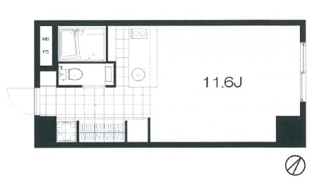
2015年8月にデザイナーズリノベーション済みの11.6畳の洋室が広がるワンルーム。温かみのある床に木製のカウンターキッチンがお洒落な室内。追い炊き付きのお風呂や独立洗面台等の室内設備も充実してます
物件写真・間取り
物件概要
| 物件名 | ダイアパレス西巣鴨 |
|---|
| 交通機関 | 三田線・西巣鴨駅 徒歩 9分 山手線・大塚駅 徒歩 14分 東武東上線・北池袋駅 徒歩 9分 |
|---|
| 間取り詳細 | 11.6畳 |
|---|
| 建物構造 | SRC |
|---|
| 所在階 / 階数 | 3階/13階建 |
|---|
| 主要採光面 | 北東側 |
|---|
| 契約期間 | 2年 |
|---|
| 引渡 | 即入居 |
|---|
| 現況 | 空 |
|---|
| 設備・条件 | デザイナーズ/外壁タイル張り/分譲賃貸/エレベーター/敷地内ごみ置き場/駐輪場/バイク置場/オートロック/全居室洋室/システムキッチン/対面式キッチン/ガスレンジ付/2口コンロ/都市ガス/バストイレ別/追焚機能浴室/洗面所独立/バルコニー/フローリング/無垢材使用/室内洗濯置/クロゼット/シューズボックス/BS・CS/CATV/光ファイバー/TVインターホン/リノベーション/即入居可/保証人不要/エアコン |
|---|
| 備考 | リノベーション物件やデザイナーズマンション情報が豊富なリガール株式会社! |
|---|
| 取引態様 | 媒介 |
|---|
| 情報登録日 | 2019年10月20日 |
|---|
| 情報更新日 | 2019年10月20日 |
|---|





