- HOME
- マンションギャラリー一覧
- ガリシア大塚South
ガリシア大塚South
【 マンション 】【仲介手数料無料】インターネット利用料が不要の新築分譲賃貸マンション
| 最寄駅 | 所在地 | 間取り | 面積 | 築年月 |
|---|---|---|---|---|
山手線・大塚駅 徒歩 3分 | 東京豊島区南大塚3-30-10 | 1 LDK | 41.97㎡ | 2019年09月 |
この物件の募集は終了しています
【仲介手数料無料】角部屋、二面採光の風通しに優れた1LDKはインターネット利用料が無料。グリル付きの3口システムキッチンや追い炊き、浴室乾燥機、洗髪洗面化粧台、温水洗浄便座等の設備に優れた新築の室内。
物件写真・間取り
物件概要
| 物件名 | ガリシア大塚South |
|---|
| 交通機関 | 山手線・大塚駅 徒歩 3分 丸の内線・新大塚駅 徒歩 10分 有楽町線・東池袋駅 徒歩 13分 |
|---|
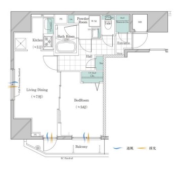
| 間取り詳細 | LDK:11畳 洋室:5.6畳 |
|---|
| 建物構造 | RC |
|---|
| 所在階 / 階数 | 4階/14階建 |
|---|
| 主要採光面 | 北東側 |
|---|
| 契約期間 | 2年 |
|---|
| 引渡 | 即入居 |
|---|
| 現況 | 空 |
|---|
| 設備・条件 | 新築/分譲賃貸/エレベーター/24時間ゴミ出し可/宅配ボックス/敷地内ごみ置き場/駐輪場/角住戸/2面採光/オートロック/ダブルロックキー/防犯カメラ/24時間緊急通報システム/全居室洋室/システムキッチン/ガスレンジ付/3口以上コンロ/グリル付/都市ガス/バストイレ別/オートバス/追焚機能浴室/浴室乾燥機/温水洗浄便座/洗面所独立/シャワー付洗面台/24時間換気システム/バルコニー/フローリング/全居室フローリング/室内洗濯置/クロゼット/シューズボックス/シューズWIC/BS・CS/CATV/ネット使用料不要/TVインターホン/即入居可/仲介手数料不要/保証人不要/エアコン/通風良好 |
|---|
| 備考 | 新築物件はリガール株式会社にお任せください! |
|---|
| 取引態様 | 媒介 |
|---|
| 情報登録日 | 2019年10月11日 |
|---|
| 情報更新日 | 2019年10月11日 |
|---|





