- HOME
- マンションギャラリー一覧
- プラウドタワー東池袋
プラウドタワー東池袋
【 マンション 】ミストサウナや床暖房、食洗器のあるペット可分譲タワー
| 最寄駅 | 所在地 | 間取り | 面積 | 築年月 |
|---|---|---|---|---|
有楽町線・東池袋駅 徒歩 5分 | 東京都豊島区東池袋5-19-1 | 2 LDK | 68.81㎡ | 2019年03月 |
この物件の募集は終了しています
南西向き、二面バルコニーの広がる2LDKはリビングの床暖房やミストサウナ、追い炊き付のお風呂、食洗器、ディスポーザー、浄水器付きカウンターキッチンと設備に優れ、インターネット無料、ペットの飼育が可能
物件写真・間取り
物件概要
| 物件名 | プラウドタワー東池袋 |
|---|
| 交通機関 | 有楽町線・東池袋駅 徒歩 5分 丸の内線・新大塚駅 徒歩 9分 山手線・池袋駅 徒歩 10分 |
|---|
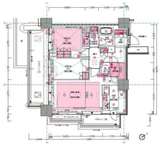
| 間取り詳細 | LDK:17.3畳 洋室:6.5畳、6畳 |
|---|
| 建物構造 | RC |
|---|
| 所在階 / 階数 | 2階/20階建 |
|---|
| 主要採光面 | 南東側 |
|---|
| 駐車場 | 空有 |
|---|
| 駐車場料金 | 30,000円 |
|---|
| 契約期間 | 2年 |
|---|
| 引渡 | 11月上旬 |
|---|
| 現況 | 居住中 |
|---|
| 設備・条件 | タワーマンション/外壁タイル張り/分譲賃貸/エレベーター/エレベーター2基/キッズルーム/24時間ゴミ出し可/宅配ボックス/敷地内ごみ置き場/築2年以内/駐輪場/バイク置場/南西向き/角住戸/東南角住戸/南面3室/2面採光/南面リビング/オートロック/防犯カメラ/LDK15畳以上/システムキッチン/対面式キッチン/ガスレンジ付/3口以上コンロ/食器洗乾燥機/浄水器/ディスポーザー/バストイレ別/オートバス/追焚機能浴室/浴室乾燥機/ミストサウナ/温水洗浄便座/三面鏡付洗面化粧台/シャワー付洗面台/24時間換気システム/床暖房/バルコニー/南面バルコニー/2面バルコニー/フローリング/全居室フローリング/室内洗濯置/クロゼット/シューズボックス/納戸/ネット使用料不要/TVインターホン/ペット相談/楽器相談 |
|---|
| 備考 | 豊島区のタワーマンションはリガール株式会社にお任せください! |
|---|
| 取引態様 | 媒介 |
|---|
| 情報登録日 | 2019年09月29日 |
|---|
| 情報更新日 | 2019年09月29日 |
|---|




















