- HOME
- マンションギャラリー一覧
- g_LDK
g_LDK
【 一戸建て 】土間やロフトがある新築デザイナーズ戸建て。食洗器等の充実設備
| 最寄駅 | 所在地 | 間取り | 面積 | 築年月 |
|---|---|---|---|---|
大江戸線・牛込柳町駅 徒歩 5分 | 東京都新宿区市谷薬王寺町74 | 2 DK | 64.6㎡ | 2019年08月 |
この物件の募集は終了しています
土間やロフトがある新築の戸建ては食洗器付きのIHシステムキッチンや独立洗面台、浴室乾燥機、温水洗浄便座等の設備が充実。一部グレーチング床や框下部収納等のお洒落な内装の新築で楽しい新生活をはじめましょう
物件写真・間取り
物件概要
| 物件名 | g_LDK |
|---|
| 交通機関 | 大江戸線・牛込柳町駅 徒歩 5分 都営新宿線・曙橋駅 徒歩 8分 有楽町線・市ヶ谷駅 徒歩 15分 |
|---|
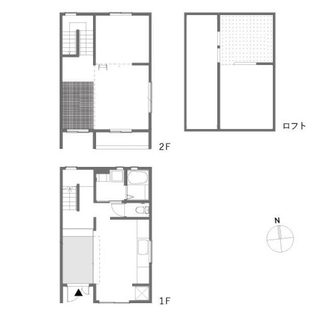
| 間取り詳細 | DK:8.5畳 洋室:6.8畳、5.1畳 ロフト:5.1畳 |
|---|
| 建物構造 | 木造 |
|---|
| 所在階 / 階数 | 1-2階/2階建 |
|---|
| 主要採光面 | 南側 |
|---|
| 契約期間 | 2年 |
|---|
| 引渡 | 即入居 |
|---|
| 現況 | 空 |
|---|
| 設備・条件 | デザイナーズ/宅配ボックス/駐輪場/南向き/2面採光/3面採光/ダブルロックキー/セキュリティ会社加入済/土間/ロフト/システムキッチン/3口以上コンロ/IHクッキングヒーター/グリル付/食器洗乾燥機/バストイレ別/追焚機能浴室/浴室乾燥機/温水洗浄便座/洗面所独立/24時間換気システム/フローリング/室内洗濯置/クロゼット/シューズボックス/ネット使用料不要/TVインターホン/保証人不要/エアコン/エアコン3台/通風良好 |
|---|
| 備考 | お洒落な物件情報が豊富なリガール株式会社で楽しいお部屋探しを! |
|---|
| 取引態様 | 媒介 |
|---|
| 情報登録日 | 2019年09月19日 |
|---|
| 情報更新日 | 2019年09月19日 |
|---|





















