- HOME
- マンションギャラリー一覧
- コノエ本郷三丁目
コノエ本郷三丁目
【 マンション 】床暖房や浄水器等の設備が充実したペット可高級分譲マンション
| 最寄駅 | 所在地 | 間取り | 面積 | 築年月 |
|---|---|---|---|---|
丸の内線・本郷三丁目駅 徒歩 5分 | 東京都文京区本郷3-14-11 | 1 LDK | 31.84㎡ | 2013年01月 |
この物件の募集は終了しています
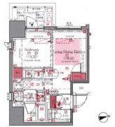
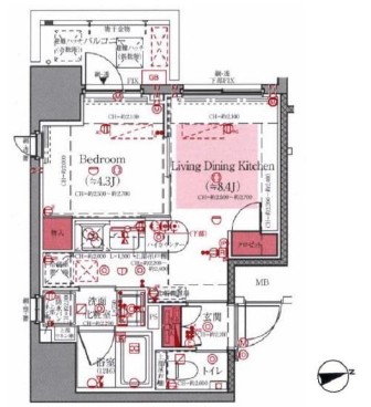
角部屋、二面採光の風通しに優れた1LDKはリビングの床暖房や浄水器付システムキッチン、追い炊きや浴室乾燥機付きお風呂、独立洗面化粧台、温水洗浄便座等の設備に優れ、室内でペットの飼育も可能です。
物件写真・間取り
物件概要
| 物件名 | コノエ本郷三丁目 |
|---|
| 交通機関 | 丸の内線・本郷三丁目駅 徒歩 5分 中央線・御茶ノ水駅 徒歩 10分 三田線・水道橋駅 徒歩 10分 |
|---|
| 間取り詳細 | LDK:8.4畳 洋室:4.3畳 |
|---|
| 建物構造 | SRC |
|---|
| 所在階 / 階数 | 8階/14階建 |
|---|
| 主要採光面 | 西側 |
|---|
| 契約期間 | 2年 |
|---|
| 引渡 | 9月下旬 |
|---|
| 現況 | 居住中 |
|---|
| 設備・条件 | 分譲賃貸/高層階/エレベーター/24時間ゴミ出し可/宅配ボックス/敷地内ごみ置き場/駐輪場/バイク置場/角住戸/2面採光/オートロック/防犯カメラ/システムキッチン/2口コンロ/IHクッキングヒーター/グリル付/浄水器/都市ガス/バストイレ別/オートバス/追焚機能浴室/浴室乾燥機/温水洗浄便座/洗面所独立/24時間換気システム/床暖房/バルコニー/フローリング/室内洗濯置/クロゼット/シューズボックス/光ファイバー/TVインターホン/ペット相談/保証人不要/エアコン/通風良好 |
|---|
| 備考 | 分譲マンションやお洒落なお部屋をお探しの方はリガール株式会社にお任せください! |
|---|
| 取引態様 | 媒介 |
|---|
| 情報登録日 | 2019年08月20日 |
|---|
| 情報更新日 | 2019年08月20日 |
|---|












