- HOME
- マンションギャラリー一覧
- レアライズ巣鴨
レアライズ巣鴨
【 マンション 】インターネット利用料無料、平置き駐車場やバイク置場が敷地内にある交通面に優れた分譲マンション
| 最寄駅 | 所在地 | 間取り | 面積 | 築年月 |
|---|---|---|---|---|
山手線・巣鴨駅 徒歩 9分 | 東京都豊島区巣鴨5-8-3 | 1 K | 26㎡ | 2019年03月 |
この物件の募集は終了しています
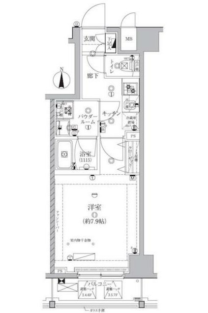
インターネット利用料が無料の南向きの室内は2口ガスのシステムキッチンや浴室乾燥機、温水洗浄便座、独立洗面台等の設備が充実。巣鴨駅が徒歩9分で利用でき、平置駐車場やバイク置場がある交通面に便利な分譲賃貸
物件写真・間取り
物件概要
| 物件名 | レアライズ巣鴨 |
|---|
| 交通機関 | 山手線・巣鴨駅 徒歩 9分 三田線・西巣鴨駅 徒歩 9分 山手線・大塚駅 徒歩 14分 |
|---|
| 間取り詳細 | 7.9畳 |
|---|
| 建物構造 | RC |
|---|
| 所在階 / 階数 | 5階/7階建 |
|---|
| 主要採光面 | 南側 |
|---|
| 契約期間 | 2年 |
|---|
| 引渡 | 10月上旬 |
|---|
| 現況 | 居住中 |
|---|
| 設備・条件 | 分譲賃貸/エレベーター/24時間ゴミ出し可/宅配ボックス/敷地内ごみ置き場/築2年以内/平面駐車場/駐輪場/バイク置場/南向き/オートロック/防犯カメラ/システムキッチン/ガスレンジ付/2口コンロ/都市ガス/バストイレ別/浴室乾燥機/温水洗浄便座/洗面所独立/24時間換気システム/バルコニー/南面バルコニー/フローリング/室内洗濯置/クロゼット/シューズボックス/BS・CS/ネット使用料不要/TVインターホン/保証人不要/エアコン |
|---|
| 備考 | 豊島区のお一人暮らしはリガール株式会社にお任せください! |
|---|
| 取引態様 | 媒介 |
|---|
| 情報登録日 | 2019年07月30日 |
|---|
| 情報更新日 | 2019年07月30日 |
|---|


















