- HOME
- マンションギャラリー一覧
- TスクエアDUPLEX
TスクエアDUPLEX
【 マンション 】ペット可、楽器可、事務所利用可のデザイナーズマンション
| 最寄駅 | 所在地 | 間取り | 面積 | 築年月 |
|---|---|---|---|---|
西武池袋線・椎名町駅 徒歩 7分 | 東京都豊島区南長崎3-27-7 | 2 LDK | 69.39㎡ | 2012年04月 |
この物件の募集は終了しています
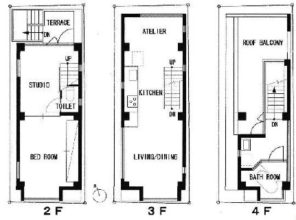
| 2階から4階までのデザイナーズメゾネット。開放的なお風呂には追い炊きがつき、2、3階全体には床暖房、グリル付3口システムキッチンと設備が充実。ウッドデッキ11.83㎡のルーフバルコニーが広がります。 |
物件写真・間取り
物件概要
| 物件名 | TスクエアDUPLEX |
|---|
| 交通機関 | 西武池袋線・椎名町駅 徒歩 7分 大江戸線・落合南長崎駅 徒歩 8分 西武池袋線・東長崎駅 徒歩 6分 |
|---|
| 建物構造 | RC |
|---|
| 所在階 / 階数 | 2-4階/4階建 |
|---|
| 主要採光面 | 南側 |
|---|
| バルコニー面積 | 11.83 |
|---|
| 契約期間 | 2年 |
|---|
| 引渡 | 8月下旬 |
|---|
| 現況 | 居住中 |
|---|
| 設備・条件 | デザイナーズ/内装コンクリート/1フロア1住戸/最上階/南向き/角住戸/全室2面採光/ディンプルキー/メゾネット/システムキッチン/ガスレンジ付/3口以上コンロ/グリル付/都市ガス/バストイレ別/オートバス/追焚機能浴室/温水洗浄便座/洗面所独立/24時間換気システム/床暖房/ルーフバルコニー/ウッドデッキ/全居室フローリング/室内洗濯置/TVインターホン/ペット相談/事務所相談/楽器相談/エアコン/通風良好 |
|---|
| 備考 | デザイナーズマンションをお探しの方はリガール株式会社にお任せください! |
|---|
| 取引態様 | 媒介 |
|---|
| 情報登録日 | 2019年07月29日 |
|---|
| 情報更新日 | 2019年07月29日 |
|---|
















