- HOME
- マンションギャラリー一覧
- クレヴィア池袋East
クレヴィア池袋East
【 マンション 】池袋駅徒歩10分の新築分譲マンション。追い炊きや浄水器付システムキッチン等の設備が充実
| 最寄駅 | 所在地 | 間取り | 面積 | 築年月 |
|---|---|---|---|---|
山手線・池袋駅 徒歩 10分 | 東京都豊島区東池袋2-45 | 1 DK | 28.99㎡ | 2019年08月 |
この物件の募集は終了しています
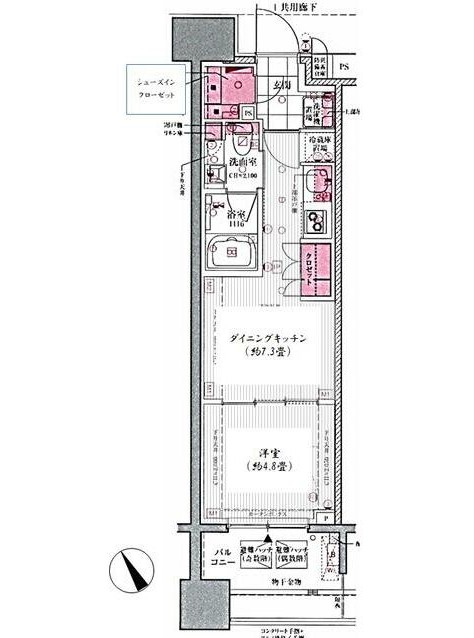
| 南西向きの1DKは浄水器、グリル付きのシステムキッチンや追い炊き、浴室乾燥機、独立洗面台、タンクレストイレ等の設備が充実した新築。靴の多い方に嬉しいシューズインクローゼットがあり収納も豊富です。 |
物件写真・間取り
物件概要
| 物件名 | クレヴィア池袋East |
|---|
| 交通機関 | 山手線・池袋駅 徒歩 10分 有楽町線・東池袋駅 徒歩 10分 山手線・大塚駅 徒歩 11分 |
|---|
| 間取り詳細 | DK:7.3畳 洋室:4.8畳 |
|---|
| 建物構造 | RC |
|---|
| 所在階 / 階数 | 2階/14階建 |
|---|
| 主要採光面 | 南西側 |
|---|
| 契約期間 | 2年 |
|---|
| 引渡 | 9月下旬 |
|---|
| 現況 | 未完成 |
|---|
| 設備・条件 | 新築/二重床構造/二重天井構造/外壁タイル張り/分譲賃貸/エレベーター/24時間ゴミ出し可/宅配ボックス/敷地内ごみ置き場/築2年以内/駐輪場/南西向き/オートロック/ダブルロックキー/ディンプルキー/防犯カメラ/システムキッチン/ガスレンジ付/2口コンロ/グリル付/浄水器/都市ガス/バストイレ別/オートバス/追焚機能浴室/浴室乾燥機/温水洗浄便座/タンクレストイレ/洗面所独立/24時間換気システム/バルコニー/南面バルコニー/全居室フローリング/室内洗濯置/クロゼット/シューズボックス/シューズWIC/BS・CS/CATV/光ファイバー/TVインターホン/エアコン |
|---|
| 備考 | 新築マンションをお探しの方はリガール株式会社にお任せください! |
|---|
| 取引態様 | 媒介 |
|---|
| 情報登録日 | 2019年07月28日 |
|---|
| 情報更新日 | 2019年07月28日 |
|---|




















