- HOME
- マンションギャラリー一覧
- ZOOM上板橋
ZOOM上板橋
【 マンション 】ペットの飼育が可能、ルーフバルコニーが広がる二面採光の角部屋
| 最寄駅 | 所在地 | 間取り | 面積 | 築年月 |
|---|---|---|---|---|
東武東上線・上板橋駅 徒歩 6分 | 東京都板橋区上板橋2-10-7 | 1 LDK | 35.87㎡ | 2015年02月 |
この物件の募集は終了しています
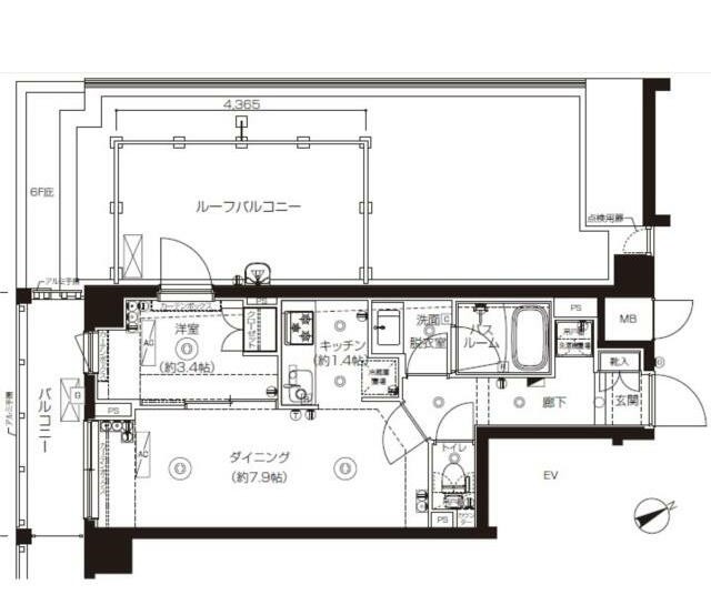
南向き、ルーフバルコニー含む二面バルコニーが広がる角部屋は追い炊きや浴室乾燥機、グリル付3口システムキッチン、三面鏡付独立洗面化粧台等の設備が充実。ペットの飼育が可能、インターネット利用料無料です
物件写真・間取り
物件概要
| 物件名 | ZOOM上板橋 |
|---|
| 交通機関 | 東武東上線・上板橋駅 徒歩 6分 東武東上線・東武練馬駅 徒歩 14分 有楽町線・氷川台駅 徒歩 23分 |
|---|
| 間取り詳細 | LDK:9.3畳 洋室:3.4畳 |
|---|
| 建物構造 | RC |
|---|
| 所在階 / 階数 | 7階/8階建 |
|---|
| 主要採光面 | 南側 |
|---|
| 契約期間 | 2年 |
|---|
| 引渡 | 8月下旬 |
|---|
| 現況 | 居住中 |
|---|
| 設備・条件 | ペット可/インターネット利用料無料/分譲賃貸/高層階/エレベーター/24時間ゴミ出し可/宅配ボックス/駐輪場/バイク置場/南西角住戸/南面2室/2面採光/オートロック/ダブルロックキー/ディンプルキー/防犯カメラ/システムキッチン/3口コンロ/グリル付/都市ガス/バストイレ別/オートバス/追焚機能浴室/浴室乾燥機/温水洗浄便座/三面鏡付洗面化粧台/24時間換気システム/ルーフバルコニー |
|---|
| 備考 | ペット可物件や分譲賃貸マンション探し、ルーフバルコニー付物件等様々な種類を取りそろえるリガール株式会社!何でもご相談ください! |
|---|
| 取引態様 | 媒介 |
|---|
| 情報登録日 | 2019年07月16日 |
|---|
| 情報更新日 | 2019年07月16日 |
|---|

















