- HOME
- マンションギャラリー一覧
- クレイシア新大塚
クレイシア新大塚
【 マンション 】ペットの飼育が可能、インターネット、Wi-Fi利用が無料の分譲賃貸マンション!
| 最寄駅 | 所在地 | 間取り | 面積 | 築年月 |
|---|---|---|---|---|
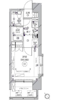
丸の内線・新大塚駅 徒歩 2分 | 東京都豊島区南大塚3-4-3 | 1 K | 23.28㎡ | 2012年02月 |
この物件の募集は終了しています
南西向き、角部屋、二面採光の風通しに優れた室内はペットの飼育が可能、インターネット利用料も無料と生活を楽しめます。グリル付きシステムキッチンや独立洗面台等の室内設備やバイク置場等の共用設備も充実
物件写真・間取り
物件概要
| 物件名 | クレイシア新大塚 |
|---|
| 交通機関 | 丸の内線・新大塚駅 徒歩 2分 山手線・大塚駅 徒歩 6分 荒川線・向原駅 徒歩 5分 |
|---|
| 間取り詳細 | 6.6畳 |
|---|
| 建物構造 | RC |
|---|
| 所在階 / 階数 | 5階/12階建 |
|---|
| 主要採光面 | 南西側 |
|---|
| 契約期間 | 2年 |
|---|
| 引渡 | 8月下旬 |
|---|
| 現況 | 居住中 |
|---|
| 設備・条件 | 二重床構造/分譲賃貸/エレベーター/ペット専用設備/24時間ゴミ出し可/宅配ボックス/敷地内ごみ置き場/駐輪場/バイク置場/南西向き/角住戸/2面採光/オートロック/ダブルロックキー/ディンプルキー/防犯カメラ/24時間緊急通報システム/システムキッチン/2口コンロ/グリル付/浴室乾燥機/温水洗浄便座/洗面化粧台/24時間換気システム/南面バルコニー/BS・CS/CATV/ネット使用料不要/TVインターホン/ペット相談 |
|---|
| 備考 | 豊島区のお部屋探しはリガール株式会社にお任せください! |
|---|
| 取引態様 | 媒介 |
|---|
| 情報登録日 | 2019年07月11日 |
|---|
| 情報更新日 | 2019年07月11日 |
|---|





