- HOME
- マンションギャラリー一覧
- ブライズ西巣鴨
ブライズ西巣鴨
【 マンション 】西巣鴨駅徒歩4分、オートロックや防犯カメラ、モニター付きインターホン等のセキュリティに優れた女性も安心の分譲賃貸マンション
| 最寄駅 | 所在地 | 間取り | 面積 | 築年月 |
|---|---|---|---|---|
三田線・西巣鴨駅 徒歩 4分 | 東京都豊島区西巣鴨3-14-13 | 1 K | 20.43㎡ | 2012年11月 |
この物件の募集は終了しています
三田線西巣鴨駅徒歩4分、大通り沿いに面し、モニター付きオートロックや防犯カメラ等のセキュリティが充実した女性や学生さんの入居も安心の2012年築高級分譲賃貸マンション『ブライズ西巣鴨』
敷地内ゴミ置場や駐輪場、宅配ボックス、エレベーター等の共用設備に優れた分譲賃貸マンションはシステムキッチンや独立洗面化粧台、浴室乾燥機等の室内設備も充実しております。
城北エリアのお一人暮らしはリガール株式会社にお任せください。
物件情報はもちろん、周辺環境情報が豊富なスタッフと楽しく安心のお部屋探しを
物件写真・間取り
物件概要
| 物件名 | ブライズ西巣鴨 |
|---|
| 交通機関 | 三田線・西巣鴨駅 徒歩 4分 山手線・巣鴨駅 徒歩 16分 埼京線・板橋駅 徒歩 17分 |
|---|
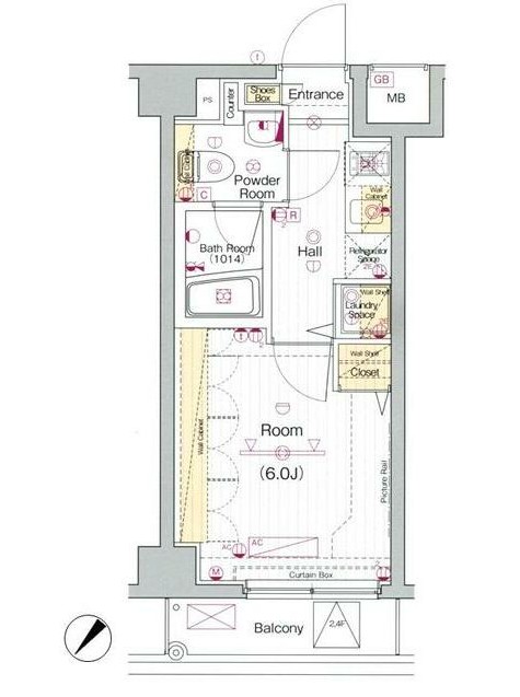
| 間取り詳細 | 6畳 |
|---|
| 建物構造 | RC |
|---|
| 所在階 / 階数 | 4 |
|---|
| 主要採光面 | 北西側 |
|---|
| 契約期間 | 2年 |
|---|
| 引渡 | 即入居 |
|---|
| 現況 | 空 |
|---|
| 設備・条件 | 分譲賃貸マンション・システムキッチン・独立洗面化粧台・浴室換気乾燥機・温水洗浄便座・上部吊収納・防犯カメラ・オートロック・モニター付きインターホン・エレベーター・駐輪場・宅配ロッカー・敷地内ゴミ置場・鉄筋コンクリート造 |
|---|
| 備考 | 西巣鴨駅徒歩4分に位置する分譲賃貸マンション。独立洗面台や2口ガスのシステムキッチン、浴室換気乾燥暖房機、温水洗浄便座等の設備に優れ、洋室の片側一面に上部吊収納がある収納豊富な室内です。 |
|---|
| 取引態様 | 媒介 |
|---|
| 情報登録日 | 2019年06月13日 |
|---|
| 情報更新日 | 2019年06月13日 |
|---|





















