- HOME
- マンションギャラリー一覧
- ウエストパークタワー池袋
ウエストパークタワー池袋
【 マンション 】池袋駅徒歩2分にそびえたつ32階建てのタワーマンション!コンシェルジュサービスやスカイラウンジ等のタワーマンションならではの設備が充実!ペットの飼育や楽器の演奏も相談可能です!弊社では仲介手数料無料でご紹介してます!
| 最寄駅 | 所在地 | 間取り | 面積 | 築年月 |
|---|---|---|---|---|
山手線・池袋駅 徒歩 2分 | 東京都豊島区西池袋3-21-13 | 3 LDK | 74.73㎡ | 2006年12月 |
この物件の募集は終了しています
池袋駅から徒歩2分、芸術劇場通り沿いにそびえたつ32階建てのタワーマンション!24時間有人管理、ダブルオートロックのセキュリティに優れたタワーマンション。フロントサービスがあなたの生活をお手伝い、スカイラウンジや各階ゴミ置場もあり便利。6階、19階、28階以外はペットの飼育が可能、全部屋楽器の演奏が可能。駐車場やバイク置場、駐輪場もあります。
物件写真・間取り
物件概要
| 物件名 | ウエストパークタワー池袋 |
|---|
| 交通機関 | 山手線・池袋駅 徒歩 2分 山手線・目白駅 徒歩 13分 有楽町線・要町駅 徒歩 14分 |
|---|
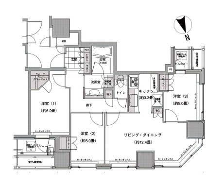
| 間取り詳細 | LDK:15.7畳 洋室:6畳、5畳、5畳 |
|---|
| 建物構造 | RC |
|---|
| 所在階 / 階数 | 23 |
|---|
| 主要採光面 | 北西側 |
|---|
| 駐車場 | 空有 |
|---|
| 駐車場料金 | 41,040円/月 |
|---|
| 契約期間 | 2年 |
|---|
| 引渡 | 即入居 |
|---|
| 現況 | 空 |
|---|
| 設備・条件 | タワーマンション・コンシェルジュサービス・24時間有人管理・スカイラウンジ・駐車場・バイク置場・駐輪場・楽器可・ペット可・各階ゴミ置場・宅配ボックス・ダブルオートロック・インターネット利用料無料・ディスポーザー・浄水器・グリル・3口カウンターキッチン・追い炊き・浴室乾燥機・独立洗面化粧台・床暖房・ウォークインクローゼット・角部屋・二面バルコニー |
|---|
| 備考 | 【礼金、仲介手数料不要】ペットの飼育、楽器の演奏が可能な池袋駅徒歩2分のタワーマンション。コンシェルジュサービスやスカイラウンジ等の共用設備や床暖房、浄水器、ディスポーザー、カウンターキッチン、追い炊き、ウォークインクローゼット、インターネット利用料無料と室内設備も充実 |
|---|
| 取引態様 | 媒介 |
|---|
| 情報登録日 | 2019年06月10日 |
|---|
| 情報更新日 | 2019年06月03日 |
|---|
















