- HOME
- マンションギャラリー一覧
- ラサクラス
ラサクラス
【 マンション 】1階にコンビニ!複数駅が利用可能、池袋駅行のバス停も徒歩2分と交通に買い物に便利な立地に建つ2014年築賃貸マンション
| 最寄駅 | 所在地 | 間取り | 面積 | 築年月 |
|---|---|---|---|---|
埼京線・板橋駅 徒歩 8分 | 東京都北区滝野川7-49-1 | 1 LDK | 43.13㎡ | 2014年03月 |
この物件の募集は終了しています
板橋駅徒歩8分、西巣鴨駅徒歩6分等複数駅が利用可能な立地に建つ2014年築賃貸マンション。1階にはコンビニがありスーパーやドラッグストアも近隣にある買い物に便利な住環境。明治通り沿いにあり、オートロックやダブルロックキー、ディンプルキー、モニター付きインターホン等セキュリティに優れた女性やお子様も安心のマンション。敷地内ゴミ置場や駐輪場等の共用設備も充実しております。
城北エリアのお部屋探しはリガール株式会社にお任せください!
周辺環境情報や近隣物件情報が豊富なスタッフがご案内致します。
物件写真・間取り
物件概要
| 物件名 | ラサクラス |
|---|
| 交通機関 | 埼京線・板橋駅 徒歩 8分 三田線・西巣鴨駅 徒歩 6分 山手線・大塚駅 徒歩 15分 |
|---|
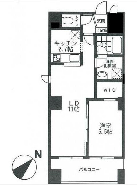
| 間取り詳細 | LDK:13.7畳 洋室:5.5畳 |
|---|
| 建物構造 | RC |
|---|
| 所在階 / 階数 | 6 |
|---|
| 主要採光面 | 南東側 |
|---|
| 契約期間 | 2年 |
|---|
| 引渡 | 7月中旬 |
|---|
| 現況 | 居住中 |
|---|
| 設備・条件 | 角部屋・二面採光・南東向き・カウンターキッチン・追い炊き・オートバス・温水洗浄便座・シャンプードレッサー・室内物干し・ウォークインクローゼット・敷地内ゴミ置場・オートロック・ダブルロック・ディンプルキー・モニター付きインターホン・BS・CS |
|---|
| 備考 | 南東向き、角部屋、二面採光の風通しに優れた1LDKはウォークインクローゼットがあり収納豊富。IHのカウンターキッチンや追い炊きオートバス、シャンプードレッサー、温水洗浄便座等の設備が充実。 |
|---|
| 取引態様 | 媒介 |
|---|
| 情報登録日 | 2019年06月09日 |
|---|
| 情報更新日 | 2019年06月09日 |
|---|
















