- HOME
- マンションギャラリー一覧
- プレミアガーデン本郷
プレミアガーデン本郷
【 マンション 】【礼金0ヶ月、仲介手数料不要、フリーレント1ヶ月】ペットの飼育が可能、楽器の演奏も可能なメゾネットタイプの3LDK。駐車場が無料で利用可能。床暖房やオーブン、食洗器等の高級設備も充実
| 最寄駅 | 所在地 | 間取り | 面積 | 築年月 |
|---|---|---|---|---|
南北線・東大前駅 徒歩 6分 | 東京都文京区向丘1-14-2 | 3 LDK | 108.4㎡ | 2002年03月 |
この物件の募集は終了しています
【礼金0か月、仲介手数料不要、フリーレント1ヶ月】
南北線東大前駅徒歩6分、本駒込駅徒歩10分、三田線白山駅徒歩6分と複数駅が利用可能な交通面に優れた立地!高級住宅街の文京区向丘1丁目に位置する低層マンションは駐車場が無料で利用可能、ペットの飼育や楽器の演奏も楽しめます。
高級物件をお探しの方はリガール株式会社にお任せください。
分譲賃貸マンションやタワーマンション等の高級物件情報が豊富です。
物件写真・間取り
物件概要
| 物件名 | プレミアガーデン本郷 |
|---|
| 交通機関 | 南北線・東大前駅 徒歩 6分 三田線・白山駅 徒歩 6分 南北線・本駒込駅 徒歩 10分 |
|---|
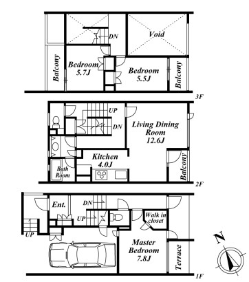
| 間取り詳細 | LDK:16.6畳 洋室:7.8畳、5.7畳、5.5畳 |
|---|
| 建物構造 | RC |
|---|
| 所在階 / 階数 | 1-3 |
|---|
| 主要採光面 | 南東側 |
|---|
| 駐車場 | 付 |
|---|
| 駐車場料金 | 無料 |
|---|
| 契約期間 | 2年 |
|---|
| 引渡 | 6月下旬 |
|---|
| 現況 | 空 |
|---|
| 設備・条件 | 駐車場無料・礼金0か月・フリーレント1ヶ月・仲介手数料不要・ペット可・楽器可・床暖房・オーブン・食洗器・グリル・3口システムキッチン・追い炊きオートバス・浴室乾燥機・三面鏡付洗髪洗面化粧台・トイレ2か所・メゾネット・二面バルコニー・ウォークインクローゼット・オートロック・ダブルロック・モニター付きインターホン・敷地内ゴミ置場・鉄筋コンクリート造 |
|---|
| 備考 | 【仲介手数料不要、礼金0か月、フリーレント1ヶ月】駐車場が1台無料で付くメゾネットタイプの3LDKはオーブン、食洗器付きの3口システムキッチンや床暖房、追い炊き、浴室乾燥機、三面鏡付洗髪洗面化粧台、ウォークインクローゼット等の設備が充実。吹き抜けがあり開放的なリビングです。 |
|---|
| 取引態様 | 媒介 |
|---|
| 情報登録日 | 2019年06月08日 |
|---|
| 情報更新日 | 2019年06月08日 |
|---|




















