- HOME
- マンションギャラリー一覧
- グランドミレーニア
グランドミレーニア
【 マンション 】南池袋1丁目にそびえたつ31階建てのコンシェルジュサービス付2015年築分譲タワーマンション!ミストサウナや食洗器、床暖房等の室内設備も充実
| 最寄駅 | 所在地 | 間取り | 面積 | 築年月 |
|---|---|---|---|---|
山手線・池袋駅 徒歩 6分 | 東京都豊島区南池袋1-11-19 | 2 LDK | 56.13㎡ | 2015年02月 |
この物件の募集は終了しています
池袋駅徒歩6分、南池袋1丁目にそびえたつ31階建ての分譲タワーマンション。華やかな外観が目を引く2015年築の分譲タワーマンションはコンシェルジュサービスがあなたの生活をサポート。駐車場やバイク置場、駐輪場も敷地内にあり、各階にあるゴミ置場や24時間オンラインセキュリティシステムサービス等共用設備が充実しております。
物件写真・間取り
物件概要
| 物件名 | グランドミレーニア |
|---|
| 交通機関 | 山手線・池袋駅 徒歩 6分 山手線・目白駅 徒歩 8分 副都心線・雑司が谷駅 徒歩 8分 |
|---|
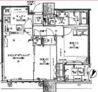
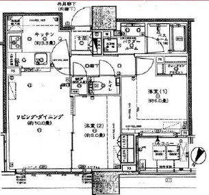
| 間取り詳細 | LDK:13.3畳 洋室:6畳、5畳 |
|---|
| 建物構造 | RC |
|---|
| 所在階 / 階数 | 21 |
|---|
| 主要採光面 | 北西側 |
|---|
| 駐車場 | 空有 |
|---|
| 駐車場料金 | 29,000円~50,000円 |
|---|
| 契約期間 | 2年 |
|---|
| 引渡 | 即入居 |
|---|
| 現況 | 空 |
|---|
| 設備・条件 | タワーマンション・分譲・コンシェルジュサービス・各階ゴミ置場・宅配ボックス・24時間オンラインセキュリティシステム・モニター付オートロック・内廊下・駐車場・バイク置場・駐輪場・ミストサウナ・追い炊き・浴室乾燥機・カウンターキッチン・食洗器・ディスポーザー・床暖房・インターネット利用料無料・複層ガラス・三面鏡付独立洗面化粧台・タンクレストイレ・ウォークインクローゼット・納戸・トランクルーム |
|---|
| 備考 | 21階からの眺望を毎日楽しめる2LDKはウォークインクローゼットや納戸、トランクルームがあり収納豊富。1日の疲れを癒すミストサウナや追い炊き、浴室乾燥機付きのお風呂に三面鏡付独立洗面化粧台、ディスポーザーや食洗器、グリル付きのL字型カウンターキッチン、ウォシュレット付タンクレストイレ等の水回りの設備が充実。インターネットが無料で楽しめます。 |
|---|
| 取引態様 | 媒介 |
|---|
| 情報登録日 | 2019年06月03日 |
|---|
| 情報更新日 | 2019年06月03日 |
|---|






